夢心地を演出する天蓋つきベッド
ベッドは高さが低めの20センチ、横幅は約2.9mで、家族みんなでゴロゴロできちゃうゆったりサイズ♪安心して赤ちゃんと添い寝ができるようにベッドインベッドもご用意しています。カーテンを閉じれば、パパとママがくつろげるリビングスペースに。
WAKU WAKUワンダールーム
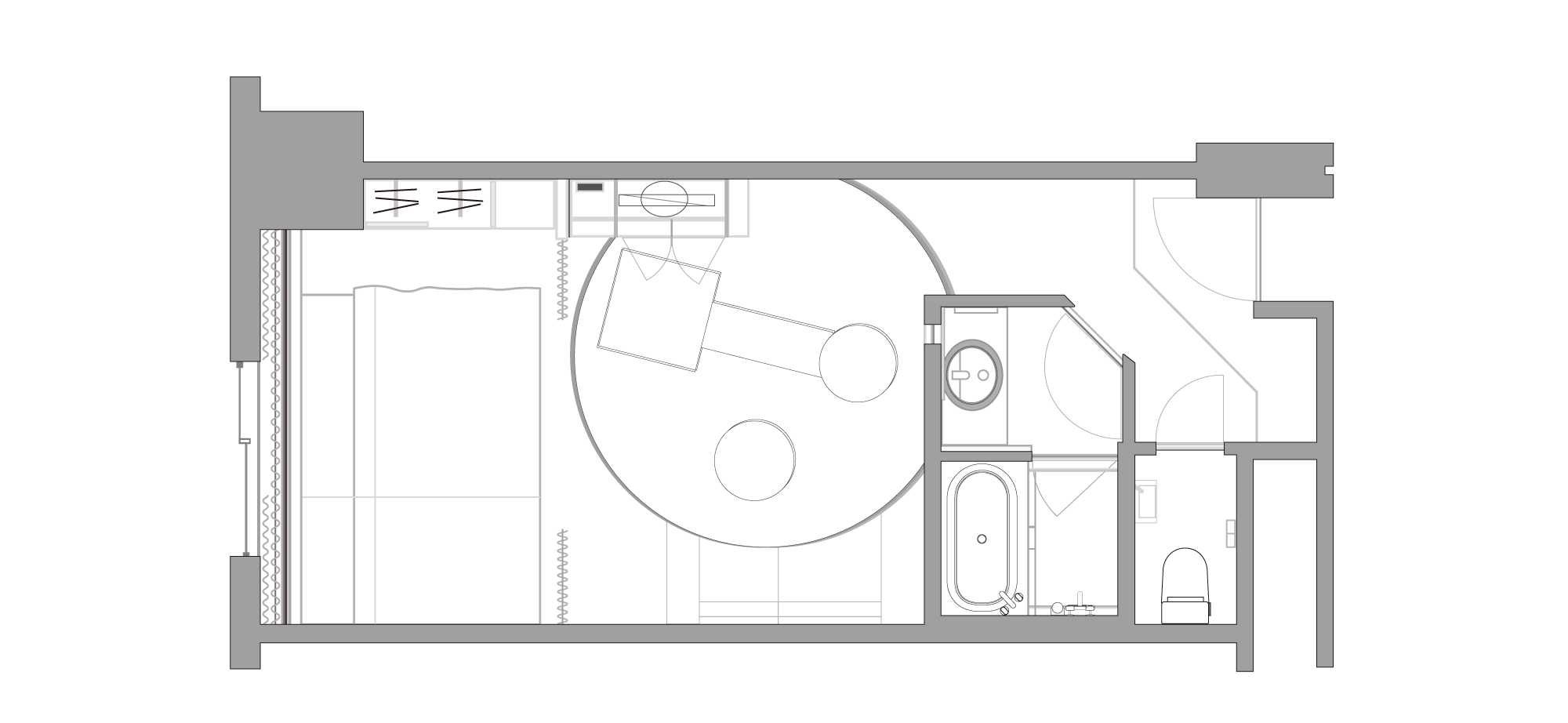
最大3名様利用(40㎡)のWAKU WAKUワンダールームは、ベビー&キッズと安心・安全に旅行を楽しめるコンセプトルーム!ハイハイしたり寝転がっても平気なやわらかい床、低くてワイドなベッド、さらに離乳食を温める電子レンジやおむつ専用ごみ箱など、安心・安全、清潔にも配慮したお部屋です。
人数
(1室あたり)
2〜3名様
広さ
40㎡
こだわり
靴を脱いで過ごせる/コンセプトルーム/お子さまにおすすめ/ファミリーにおすすめ
ベッドサイズ
ローベッド幅110cm×1台+幅180cm×1台
アメニティ
シャンプー / コンディショナー / ボディーソープ / フェイス&ハンドソープ / クレンジング / オールインワンエッセンス / 入浴剤※
※ 季節により種類が変更になります。
※ 歯ブラシ・ヘアブラシ・ヘアゴム・カミソリ・ボディタオル・コットン・綿棒は、アメニティバーにてご用意しております。
ワンピース型ナイトウェア※ / バスタオル / フェイスタオル / スリッパ
※ Extra Large(180cm)サイズもございます。ご希望の際は、フロントにお申し出ください。
お子さま用ナイトウェア※/お子さま用スリッパ
※ 100cm、120cmの2サイズです。120cm以上は大人用フリーサイズをご用意いたします。
※ お子さま用歯ブラシは、アメニティバーにてご用意しております。
客室設備
洗い場付バスルーム / 独立トイレ / ヘアードライヤー / 電気ポット / 加湿機能付空気清浄機 / 冷蔵庫(空) / 電子レンジ / おむつポット / 補助便座 / popin Aladdin / セーフティボックス / シューズドライヤー
※popIn AladdinはpopIn株式会社の登録商標です。
ベッドは高さが低めの20センチ、横幅は約2.9mで、家族みんなでゴロゴロできちゃうゆったりサイズ♪安心して赤ちゃんと添い寝ができるようにベッドインベッドもご用意しています。カーテンを閉じれば、パパとママがくつろげるリビングスペースに。
YouTubeやせかいのえほんなど、お子さまが楽しめるコンテンツがいっぱい♪
※popIn AladdinはpopIn株式会社の登録商標です。
お部屋は、カラフルな色合いで見た目もかわいい♪
いつでもミルクが簡単に作れる調乳ポットや、離乳食をあたためる電子レンジ、ママに嬉しいフェイスケア用品スチーマーナノケアを設置しています。
洗い場付きバスルームは、ファミリーに人気のポイント。お魚模様のバスルームで家族とのバスタイムも、楽しく過ごせます♪
水玉模様の壁紙がかわいいお手洗いでお子さまのトイレの時間も楽しく♪ おむつ用ごみ箱も設置しているので、ニオイも気になりません。