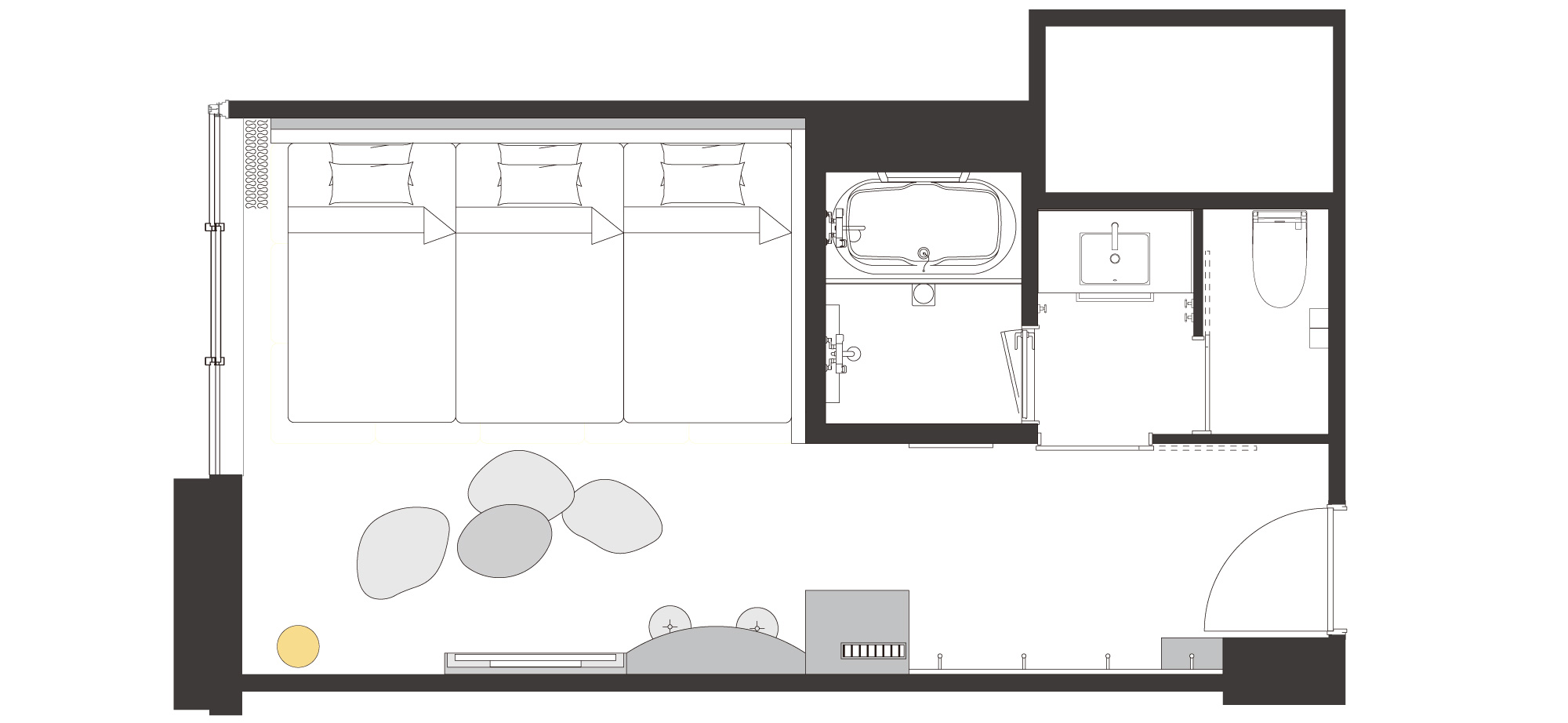
3台横並びのローベッド
雲の上のような、もこもこしたベッドの上でくつろぐ、そんな癒しがコンセプト。小さなお子様と一緒にゴロゴロとお寛ぎください♪
もこもこルーム
最大3名様利用(33㎡)の、素足でくつろげるローベッド仕様のお部屋です。視線が低いのと、思いっきり足を伸ばしてくつろぐことが出来るので、よりご自宅のような空間が広がります。もこもこした3名横並びのベッドは、小さなお子さまがいる場合も気兼ねなくお休みいただけます。
人数
(1室あたり)
1〜3名様
広さ
33㎡
こだわり
靴を脱いで過ごせる/コンセプトルーム/お子さまにおすすめ/ファミリーにおすすめ
ベッドサイズ
ローベッド幅 120cm × 3台
アメニティ
シャンプー / コンディショナー / ボディーソープ / フェイス&ハンドソープ / クレンジング / オールインワンエッセンス / 入浴剤※
※ 季節により種類が変更になります。
※ 歯ブラシ・ヘアブラシ・ヘアゴム・カミソリ・ボディタオル・コットン・綿棒は、アメニティバーにてご用意しております。
ワンピース型ナイトウェア※ / バスタオル / フェイスタオル / スリッパ
※ Extra Large(180cm)サイズもございます。ご希望の際は、フロントにお申し出ください。
お子さま用ナイトウェア※/お子さま用スリッパ
※ 100cm、120cmの2サイズです。120cm以上は大人用フリーサイズをご用意いたします。
※ お子さま用歯ブラシは、アメニティバーにてご用意しております。
客室設備
洗い場付バスルーム / 独立トイレ / ヘアードライヤー / 電気ケトル / 加湿機能付空気清浄機 / 冷蔵庫(空) / テレビ(BS可) / 冷暖房 / セーフティボックス / 電話 / ゴミ箱 / シューズドライヤー / おむつポット / 補助便座 / 調乳ポット
雲の上のような、もこもこしたベッドの上でくつろぐ、そんな癒しがコンセプト。小さなお子様と一緒にゴロゴロとお寛ぎください♪
オーバーヘッドシャワーとボディシャワーの機能付き。広々とした洗い場付きのバスルームなので、お子さまとのご入浴も快適です♪
水玉模様の壁紙がかわいいお手洗いで、お子さまのトイレの時間も楽しく♪キッズステップやおむつ用のごみ箱もご用意しております。
いつでもミルクが簡単に作れる調乳ポットをご用意しております。お子さまの旅行デビューにもおすすめのお部屋です。